Das komplett sanierte Reihenmittelhaus mit gehobener Ausstattung, neu angelegtem kleinen Garten, Terrassenüberdachung aus Glas, separatem Abstellraum und Garage befindet sich in zentraler Innenstadtlage von
Einbeck.
Das Stadtzentrum ist fußläufig in wenigen Minuten erreichbar.
Das Grundstück ist sowohl vom Hauseingang als auch vom Garten aus erschlossen und zugänglich.
Das Haus wurde ca. 1750 erbaut - um 1900 erfolgte der Austausch der Fachwerkaußenwand im Erdgeschoss zur Straße
durch ein massives Ziegelsichtmauerwerk, das heute weiß geschlämmt ist.
Im Jahr 2023 fand eine umfassende Kernsanierung statt - inklusive aller Leitungs-Systeme!
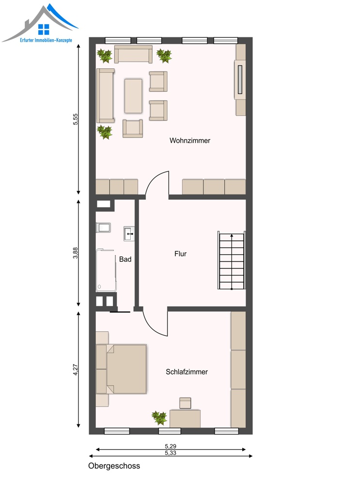
Die Grundstücksgröße beträgt 297 m², die Wohnfläche des Hauses 178 m² (verteilt auf Erdgeschoss, Obergeschoss und Dachgeschoss).
Im Erdgeschoss befindet sich ein großer Flur, von dem aus eine Tür nach draußen in den Garten führt, ein Gäste-WC und
ein großzügiger Küchen- und Essbereich mit offener Küche.
Wohn- und Schlafzimmer sowie ein großzügiges Duschbad, begehbar vom Schlafzimmer aus befinden sich im Obergeschoss.
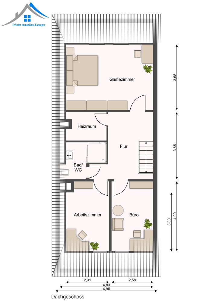
Im Dachgeschoss gibt es drei Zimmer, ein Gäste-Duschbad und einen Heizraum.
Darüber hinaus besteht die Möglichkeit, den Spitzboden als weitere Wohn-/ Nutzfläche auszubauen.
Der trockene Gewölbekeller (ehemals Braukeller) ist von außen begehbar und denkmalgeschützt.


















